






The 1-story building prototype called “Controlled Environments for Living Lab Studies” (CELLS) is a shared research facility of the Smart Living Lab managed by the Building 2050 group.
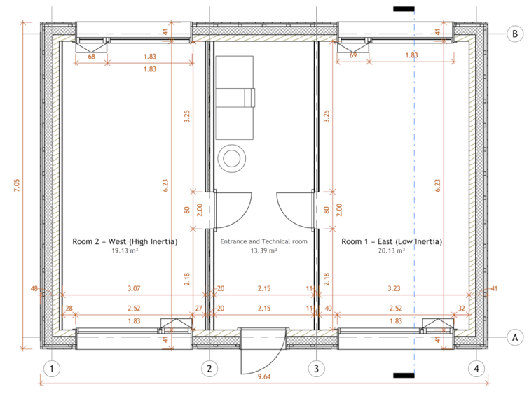
It has large windows on the South and North facades, while the East and West facades are fully opaque. There are 2 rooms slightly differ in size, the floor area of Room 1 is 19.13 m2, and the floor area of Room 2 are is 20.13 m2. A difference in the floor area between the two rooms is due to the difference in the construction of the walls. Room 2 has an additional layer of compressed earth bricks compared to Room 1. Therefore, Room 1 is a “low thermal inertia” room, while Room 2 is a “high thermal inertia” room. The rooms are separated by the entrance area with technical installations.
The facility is suitable for comfort studies with direct and indirect solar exposure, for more realistic non-uniform environment-related experiments. Due to the presence of windows (one S-facing and one N-facing window in each room), the CELLS can be used for a full-day experiments with humans.
HVAC system: The facility is conditioned using an integral unit LWZ 504 by Stiebel Eltron. The appliance is an all-in-one highly efficient system for ventilation, and space heating and cooling. It has a heat recovery heat exchanger to reduce energy use for supply air conditioning. Each room is conditioned using radiant ceiling panels.
Monitoring: There is a weather station on the roof of the facility (including SPN1 sunshine pyranometer measuring global and diffuse irradiance). To fully characterize thermal performance of the building envelope, heat flux sensors are placed on the walls and on the windows. To detail dynamic mean radiant temperature in the room, temperature of all surfaces, including radiant panels, is measured using multiple thermocouples in each room. In addition, all operational parameters of the HVAC system are monitored in detail using a special software granted by Stiebel Eltron.
Location: Fribourg (Switzerland), at the Blue Factory site






